Rodzaj paliwadopuszczalny brykiet węgla brunatnego, zalecane sezonowane drewno liściaste
Waga (kg)337,0
Emisja CO (przy 13% O 2 ) ≤ podawana w %0,91
Temperatura spalin (℃)267,0
Max długość polan (cm)40
Zgodność z normą BlmSchV 2Tak
Rodzaj przeszkleniatrójstronne
Otwieranie drzwido góry
Materiał wykonaniastal
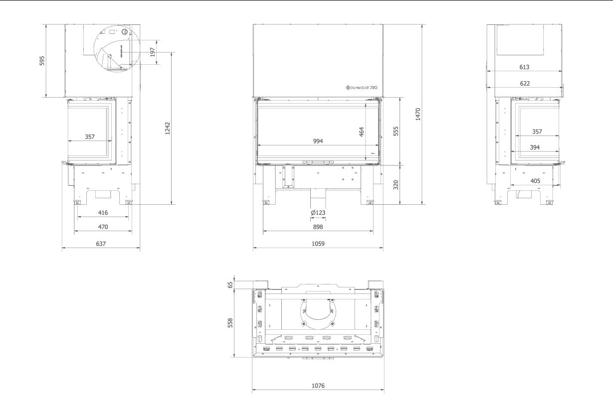
Szerokość (cm)107,60
Wysokość (cm)147,00
Głębokość (cm)62,30
Dolot powietrzaTak
Wyłożenie komory spalaniaTak
PopielnikTak
Ozdobna szyba typu glassTak
ZALETY
MAKSYMALNE WYKORZYSTANIE ENERGII
Korpus i front wkładu odporne na działanie wysokich temperatur dzięki zastosowanemu materiałowi – wysokogatunkowej stali.
Efektywne spalanie i dłuższe utrzymywanie temperatury dzięki wyłożeniu komory spalania TERMOTEC – materiałem akumulującym ciepło, który podwyższa temperaturę w komorze.
Dostarczanie powietrza wyłącznie z zewnątrz dzięki wbudowanemu króćcowi dolotu powietrza fi 125 mm. Regulacja dolotu powietrza za pomocą jednej dźwigni, co wyklucza błędy w niewłaściwym użytkowaniu.
Potrójny system dopowietrzenia komory spalania: powietrze pierwotne – skierowane jest na płytę, na której odbywa się spalanie; powietrze wtórne dostarczane jest otworami w tylnej ścianie. Dodatkowo we wkładzie zastosowany jest system czystej szyby (kurtyna powietrza).
BEZPIECZEŃSTWO NA NAJWYŻSZYM POZIOMIE
Doskonała szczelność dzięki solidnym spawom wykonanym w osłonie gazu szlachetnego.
Elementy stalowe wycinane laserowo przy pomocy nowoczesnych urządzeń, a następnie wyginane na giętarkach CNC.
Wkład wyposażony w szybę żaroodporną wytrzymująca temperaturę do 660°C.
Wkład wyposażony w ruszt, co znacznie ułatwia czyszczenie komory spalania.
Płyta dolna wkładu znacznie obniżona w stosunku do drzwi.
Podwójny system otwierania drzwi do góry (GILOTYNA) i do boku. Podnoszone i opuszczane drzwi ułatwiają załadunek ilość drewna a mechanizm umożliwiający otwarcie boczne pozwoli na sprawniejsze czyszczenie szyby.
Ograniczenie osadzanie sadzy dzięki systemowi czystej szyby (kierownica powietrza).
Wygodny i cichy mechanizm gilotyny ułatwiający czyszczenie i obsługę wkładu.
Dekoracyjna szyba typu glass wytrzymująca temperaturę do 660°C, która nadaje kominkowi nowoczesny i elegancki wygląd, optycznie powiększa front wkładu.
Wkład kominkowy trójstronny NBC 1000/400 15 kW Ø 200 Gilotyna
17 280,00 zł
Wkład kominkowy powietrzny trójstronny
Opis
DANE TECHNICZNE :
Moc nominalna (kW) 15,0
Zakres mocy grzewczej (kW) 7 – 21.0
Sprawność cieplna (%) 78,0
Średnica wylotu spalin (mm) 200
Przeznaczony do rekuperacji Tak
Rodzaj paliwa dopuszczalny brykiet węgla brunatnego, zalecane sezonowane drewno liściaste
Waga (kg) 337,0
Emisja CO (przy 13% O 2 ) ≤ podawana w % 0,91
Temperatura spalin (℃) 267,0
Max długość polan (cm) 40
Zgodność z normą BlmSchV 2 Tak
Rodzaj przeszklenia trójstronne
Otwieranie drzwi do góry
Materiał wykonania stal
Szerokość (cm) 107,60
Wysokość (cm) 147,00
Głębokość (cm) 62,30
Dolot powietrza Tak
Wyłożenie komory spalania Tak
Popielnik Tak
Ozdobna szyba typu glass Tak
ZALETY
MAKSYMALNE WYKORZYSTANIE ENERGII
Korpus i front wkładu odporne na działanie wysokich temperatur dzięki zastosowanemu materiałowi – wysokogatunkowej stali.
Efektywne spalanie i dłuższe utrzymywanie temperatury dzięki wyłożeniu komory spalania TERMOTEC – materiałem akumulującym ciepło, który podwyższa temperaturę w komorze.
Dostarczanie powietrza wyłącznie z zewnątrz dzięki wbudowanemu króćcowi dolotu powietrza fi 125 mm. Regulacja dolotu powietrza za pomocą jednej dźwigni, co wyklucza błędy w niewłaściwym użytkowaniu.
Potrójny system dopowietrzenia komory spalania: powietrze pierwotne – skierowane jest na płytę, na której odbywa się spalanie; powietrze wtórne dostarczane jest otworami w tylnej ścianie. Dodatkowo we wkładzie zastosowany jest system czystej szyby (kurtyna powietrza).
BEZPIECZEŃSTWO NA NAJWYŻSZYM POZIOMIE
Doskonała szczelność dzięki solidnym spawom wykonanym w osłonie gazu szlachetnego.
Elementy stalowe wycinane laserowo przy pomocy nowoczesnych urządzeń, a następnie wyginane na giętarkach CNC.
Wkład wyposażony w szybę żaroodporną wytrzymująca temperaturę do 660°C.
EKOLOGICZNE SPALANIE
Urządzenie spełnia wymagania Ekoprojektu oraz normy BImSchV 2, wyznaczającej maksymalną emisję CO.
WYGODNE UŻYTKOWANIE
Wkład wyposażony w ruszt, co znacznie ułatwia czyszczenie komory spalania.
Płyta dolna wkładu znacznie obniżona w stosunku do drzwi.
Podwójny system otwierania drzwi do góry (GILOTYNA) i do boku. Podnoszone i opuszczane drzwi ułatwiają załadunek ilość drewna a mechanizm umożliwiający otwarcie boczne pozwoli na sprawniejsze czyszczenie szyby.
Ograniczenie osadzanie sadzy dzięki systemowi czystej szyby (kierownica powietrza).
NOWOCZESNY DESIGN
Trójstronne przeszklenie wkładu gwarantujące maksymalną wizję ognia.
Wygodny i cichy mechanizm gilotyny ułatwiający czyszczenie i obsługę wkładu.
Dekoracyjna szyba typu glass wytrzymująca temperaturę do 660°C, która nadaje kominkowi nowoczesny i elegancki wygląd, optycznie powiększa front wkładu.
Informacje dodatkowe
Drewno
Kratki
Powietrze
Szyba U-kształt
Podobne produkty
Kominek powietrzny stalowy KRATKI LUCY 14 kW Ø 200
9 620,00 zł Dodaj do koszykaKominek powietrzny stalowy KRATKI LUCY SLIM 8 kW Ø 160
6 050,00 zł5 445,00 zł Dodaj do koszykaKominek powietrzny stalowy KRATKI LUCY lewy BS 12 kW Ø 200
7 550,00 zł6 795,00 zł Dodaj do koszyka