Wkład dostępny w dwóch wersjach zasilania Gaz (propan / ziemny)
Dane techniczne
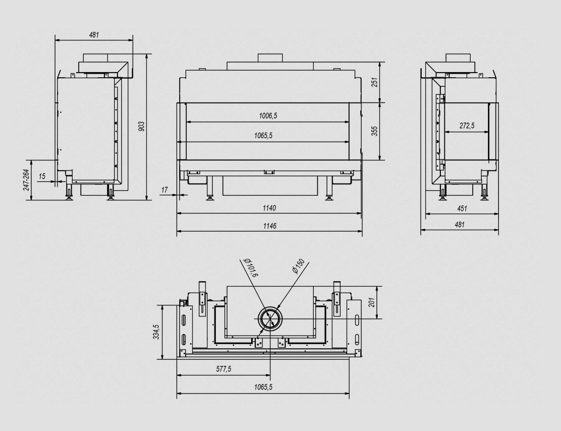
Zakres mocy grzewczej (kW) 4.3 – 9.2
Przeznaczony do rekuperacji Tak
Waga (kg) 109,0
Rodzaj przeszklenia boczne
Materiał wykonania stal
Szerokość (cm) 114,50
Wysokość (cm) 90,30
Głębokość (cm) 48,10
Zalety
MAKSYMALNE WYKORZYSTANIE ENERGII
Nowatorski, elegancki wkład gazowy o horyzontalnej i realistycznej wizji ognia.
Wysoka jakość wykonania, komfort i prostota użytkowania.
Niezakłócona wizja ognia dzięki niewidocznej ramce fasady i minimalnaej ilość widocznych elementów stalowych.
Specjalnie zaprojektowany palnik zapewnia realistyczną wizję ognia, jak w prawdziwym kominku opalanym drewnem. Dodatkowa regulacja wysokości płomienia.
BEZPIECZEŃSTWO NA NAJWYŻSZYM POZIOMIE
Urządzenie posiada certyfikat CE, który gwarantuje bezpieczeństwo użytkowania, ochronę zdrowia i środowiska.
Hermetycznie zamknięta komora spalania, która daje najwyższy stopień bezpieczeństwa; przy jakichkolwiek problemach z drożnością przewodu powietrzno-spalinowego lub dopływu gazu kominek jest automatycznie wyłączany.
WYGODNE UŻYTKOWANIE
Kontrola termostatyczna: całkowita kontrola za pomocą dotykowego pilota radiowego z wbudowanym termostatem.
Możliwość wyboru paliwa – wkład z zamkniętą komorą spalania przystosowany do palenia gazem ziemnym lub LPG.
Instalacja nie wymaga tradycyjnego komina – system przewodów koncentrycznych umożliwia instalację w pomieszczeniach bez komina, wystarczy wyprowadzić przewód poza ścianę budynku lub dach.
Kontrola czasowa: możliwość programowania temperatury dobowej nawet z siedmiodniowym wyprzedzeniem.
Urządzenie nie wymaga zewnętrznego źródła zasilania (posiada własny system zasilający). Centralka zasilana przez 4 baterie 1,5V. (opcjonalnie możliwość zakupu drugiego modułu zasilającego G 60-ZBE).
Gwarancja 2 lat.
Komplet zawiera
– automatyka sterująca procesem spalania wraz z dotykowym pilotem
– drewienka ceramiczne do wyłożenia paleniska
UWAGA! Przed zakupem należy określić jakim typem gazu będzie zasilana instalacja – gazem ziemnym (NG) czy LPG (z butli), gdyż dobór palnika i dysz zleży od wyboru gazu. Przed montażem należy upewnić się, że podłączane urządzenie jest przeznaczone do zasilania gazem odpowiednim do typu znajdującego się w instalacji gazowej. Wszelkie niezbędne informacje co do wymaganych parametrów gazu znajdują się na tabliczce znamionowej kominka.
Wkład kominkowy gazowy LEO/L/100
12 270,00 zł
LEO/L/100/LPG/G31/37MBAR
LPG (z butli).
Produkt dostępny na zamówienie
Opis
Wkład dostępny w dwóch wersjach zasilania Gaz (propan / ziemny)
Dane techniczne
Zalety
MAKSYMALNE WYKORZYSTANIE ENERGII
Nowatorski, elegancki wkład gazowy o horyzontalnej i realistycznej wizji ognia.
Wysoka jakość wykonania, komfort i prostota użytkowania.
Niezakłócona wizja ognia dzięki niewidocznej ramce fasady i minimalnaej ilość widocznych elementów stalowych.
Specjalnie zaprojektowany palnik zapewnia realistyczną wizję ognia, jak w prawdziwym kominku opalanym drewnem. Dodatkowa regulacja wysokości płomienia.
BEZPIECZEŃSTWO NA NAJWYŻSZYM POZIOMIE
Urządzenie posiada certyfikat CE, który gwarantuje bezpieczeństwo użytkowania, ochronę zdrowia i środowiska.
Hermetycznie zamknięta komora spalania, która daje najwyższy stopień bezpieczeństwa; przy jakichkolwiek problemach z drożnością przewodu powietrzno-spalinowego lub dopływu gazu kominek jest automatycznie wyłączany.
WYGODNE UŻYTKOWANIE
Kontrola termostatyczna: całkowita kontrola za pomocą dotykowego pilota radiowego z wbudowanym termostatem.
Możliwość wyboru paliwa – wkład z zamkniętą komorą spalania przystosowany do palenia gazem ziemnym lub LPG.
Instalacja nie wymaga tradycyjnego komina – system przewodów koncentrycznych umożliwia instalację w pomieszczeniach bez komina, wystarczy wyprowadzić przewód poza ścianę budynku lub dach.
Kontrola czasowa: możliwość programowania temperatury dobowej nawet z siedmiodniowym wyprzedzeniem.
Urządzenie nie wymaga zewnętrznego źródła zasilania (posiada własny system zasilający). Centralka zasilana przez 4 baterie 1,5V. (opcjonalnie możliwość zakupu drugiego modułu zasilającego G 60-ZBE).
Gwarancja 2 lat.
Komplet zawiera
– automatyka sterująca procesem spalania wraz z dotykowym pilotem
– drewienka ceramiczne do wyłożenia paleniska
UWAGA! Przed zakupem należy określić jakim typem gazu będzie zasilana instalacja – gazem ziemnym (NG) czy LPG (z butli), gdyż dobór palnika i dysz zleży od wyboru gazu. Przed montażem należy upewnić się, że podłączane urządzenie jest przeznaczone do zasilania gazem odpowiednim do typu znajdującego się w instalacji gazowej. Wszelkie niezbędne informacje co do wymaganych parametrów gazu znajdują się na tabliczce znamionowej kominka.
Informacje dodatkowe
Gaz
Kratki
Powietrze
Szyba L-kształt
Podobne produkty
Wkład kominkowy trójstronny NBC 8 lewy / prawy BS gilotyna
13 940,00 zł Dodaj do koszykaKominek z płaszczem wodnym ZUZIA PW 12 kW deco
7 370,00 zł Dodaj do koszykaKominek powietrzny stalowy KRATKI LUCY 15 kW Ø 200
8 400,00 zł7 560,00 zł Dodaj do koszyka