Jøtul I 520 FL to duży, żeliwny wkład kominkowy z przeszklonym lewym narożnikiem. Należy on do linii Jøtul I 520 Series obejmującej cztery wkłady w tym z płaską szybą, narożne i trzyszybowy. Charakteryzuje je ponadczasowe wzornictwo oraz optymalna i futurystyczna budowa. Jøtul I 520 posiada emaliowane panele, które nadają wkładowi lekkości i zapewniają dobry obraz ognia. Szyby posiadają odbijające ciepło powierzchnię, która chroni szkło przed zabrudzeniem i poprawia spalanie. Pomimo dużego rozmiaru, wkład znakomicie pracuje nawet przy mocy 3,5 kW.
Wkład kominkowy Jøtul I 520 FL
14 268,00 zł
Produkt dostępny na zamówienie
Opis
Jøtul I 520 FL
Akcesoria za dopłatą
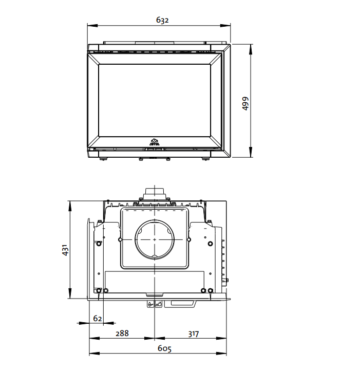
Dane techniczne
499x632x431 mm
Informacje dodatkowe
Jotul
Powietrze
Drewno
Szyba L-kształt
Podobne produkty
Kominek powietrzny stalowy KRATKI LUCY TUNEL 12 kW Ø 200
8 540,00 zł Dodaj do koszykaKominek powietrzny stalowy KRATKI LUCY lewy BS 12 kW Ø 200
7 550,00 zł6 795,00 zł Dodaj do koszykaKominek powietrzny MBM 10 lewy BS
7 670,00 zł Dodaj do koszyka