Rodzaj paliwa dopuszczalny brykiet węgla brunatnego, zalecane sezonowane drewno liściaste
Waga (kg) 189,0
Emisja CO (przy 13% O 2 ) ≤ podawana w % 0,10
Temperatura spalin (℃) 265,0
Max długość polan (cm) 40
Emisja pyłków (pył) (mg/Nm3) 18,0
Zgodność z normą BlmSchV 2 Tak
Minimalne wymagane pole czynne kratek wylotowych (cm2) ≥900
Minimalne wymagane pole czynne kratek wlotowych (cm2) ≥700
Rodzaj przeszklenia tunelowe
Otwieranie drzwi w lewo
Materiał wykonania stal
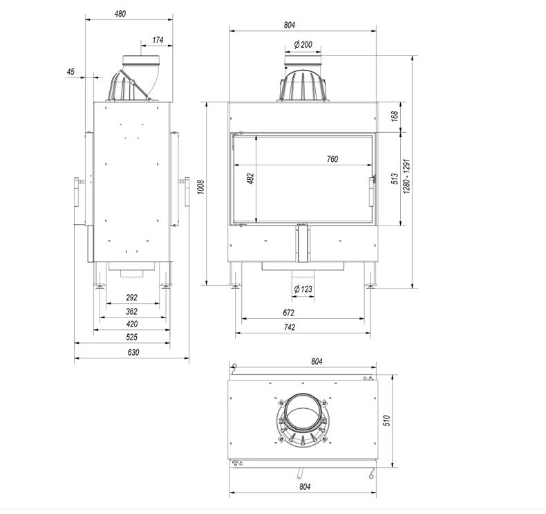
Szerokość (cm) 80,40
Wysokość (cm) 128,00
Głębokość (cm) 42,00
Dolot powietrza Tak
Wyłożenie komory spalania Tak
Popielnik Tak
Ozdobna szyba typu glass Tak
Zalety
MAKSYMALNE WYKORZYSTANIE ENERGII
Maksymalne wykorzystanie ciepła dzięki gęsto rozmieszczonym radiatorom oraz ściankom paleniska wykonanym z wysokiej jakości żeliwa o grubości 8 mm.
Dopalania cząstek opału dzięki deflektorowi, który wydłuża drogę spalin.
Potrójny system dopowietrzenia komory spalania: powietrze pierwotne – doprowadzone pod ruszt; powietrze wtórne dostarczane jest otworami w tylnej ścianie. Dodatkowo we wkładzie zastosowany jest system czystej szyby (kurtyna powietrza).
Ręczna kontrola nad procesem spalania realizowana poprzez przesuwkę popielnika.
Dostarczanie powietrza wyłącznie z zewnątrz dzięki wbudowanemu króćcowi dolotu powietrza fi 125 mm.
BEZPIECZEŃSTWO NA NAJWYŻSZYM POZIOMIE
Ozdobny płotek ułatwia utrzymanie czystości użytkowania oraz zabezpiecza przed wypadaniem drewna.
WYGODNE UŻYTKOWANIE
Duża komora spalania, która pozwala załadować jednorazowo dużą ilość opału bez konieczności częstego dokładania.
Ograniczenie osadzanie sadzy dzięki systemowi czystej szyby (kierownica powietrza).
Ruchomy, dwuczęściowy żeliwny wylot spalin z regulacją ustawienia 360°, może być skierowany zarówno do tyłu, jak i do góry.
Ruchomy dwuczęściowy żeliwny ruszt.
NOWOCZESNY DESIGN
Dekoracyjna szyba typu glass wytrzymująca temperaturę do 800°C, która nadaje kominkowi nowoczesny i elegancki wygląd, optycznie powiększa front wkładu.
Kominek powietrzny stalowy KRATKI LUCY 14 kW Ø 200
9 620,00 zł
Wkład kominkowy powietrzny prosty
Produkt dostępny na zamówienie
Opis
Dane techniczne
Zalety
MAKSYMALNE WYKORZYSTANIE ENERGII
Maksymalne wykorzystanie ciepła dzięki gęsto rozmieszczonym radiatorom oraz ściankom paleniska wykonanym z wysokiej jakości żeliwa o grubości 8 mm.
Dopalania cząstek opału dzięki deflektorowi, który wydłuża drogę spalin.
Potrójny system dopowietrzenia komory spalania: powietrze pierwotne – doprowadzone pod ruszt; powietrze wtórne dostarczane jest otworami w tylnej ścianie. Dodatkowo we wkładzie zastosowany jest system czystej szyby (kurtyna powietrza).
Ręczna kontrola nad procesem spalania realizowana poprzez przesuwkę popielnika.
Dostarczanie powietrza wyłącznie z zewnątrz dzięki wbudowanemu króćcowi dolotu powietrza fi 125 mm.
BEZPIECZEŃSTWO NA NAJWYŻSZYM POZIOMIE
Ozdobny płotek ułatwia utrzymanie czystości użytkowania oraz zabezpiecza przed wypadaniem drewna.
WYGODNE UŻYTKOWANIE
Duża komora spalania, która pozwala załadować jednorazowo dużą ilość opału bez konieczności częstego dokładania.
Ograniczenie osadzanie sadzy dzięki systemowi czystej szyby (kierownica powietrza).
Ruchomy, dwuczęściowy żeliwny wylot spalin z regulacją ustawienia 360°, może być skierowany zarówno do tyłu, jak i do góry.
Ruchomy dwuczęściowy żeliwny ruszt.
NOWOCZESNY DESIGN
Dekoracyjna szyba typu glass wytrzymująca temperaturę do 800°C, która nadaje kominkowi nowoczesny i elegancki wygląd, optycznie powiększa front wkładu.
Gwarancja 5.
Informacje dodatkowe
Drewno
Kratki
Powietrze
Szyba vis-a-vis
Może spodoba się również…
Rura spalinowa fi 200 25cm Parkanex
80,00 zł Dodaj do koszykaPrzejscie rura stalowa komin ceramiczny 200/200
146,00 zł Dodaj do koszykaKolano spalinowe nastawne 90° fi 200 Parkanex
132,00 zł Dodaj do koszykaRura spalinowa fi 200 50cm Parkanex
106,00 zł Dodaj do koszykaKolano spalinowe nastawne UNI fi 200 Parkanex
185,00 zł Dodaj do koszykaKolano spalinowe nastawne 45° fi 200 Parkanex
90,00 zł Dodaj do koszykaRura spalinowa fi 200 100cm Parkanex
166,00 zł Dodaj do koszykaWkładka Parkanex dwuścienna do komina murowanego fi 200
53,00 zł Dodaj do koszykaPodobne produkty
Kominek powietrzny stalowy KRATKI LUCY 12 kW Ø 200
6 770,00 zł Dodaj do koszykaKominek powietrzny stalowy KRATKI LUCY prawy BS 12 kW Ø 200
7 550,00 zł Dodaj do koszykaWkład kominkowy trójstronny NBC 9 lewy / prawy BS gilotyna
14 300,00 zł Dodaj do koszyka