Kuchnia wolnostojąca na drewno z płaszczem wodnym i piekarnikiem.
• Okładzina zewnętrzna z kamienia naturalnego
• Panoramiczny emaliowany piec o pojemności 41 l
• Rama z żeliwa ceramicznego
• Talerz i okręgi z polerowanego żeliwa
• Szuflada na drewno
• Regulowane powietrze pierwotne i wtórne, powietrze trzeciorzędne wstępnie skalibrowany z systemem dopalania
• Urządzenie zabezpieczające DSA (opcjonalny zawór DSA).
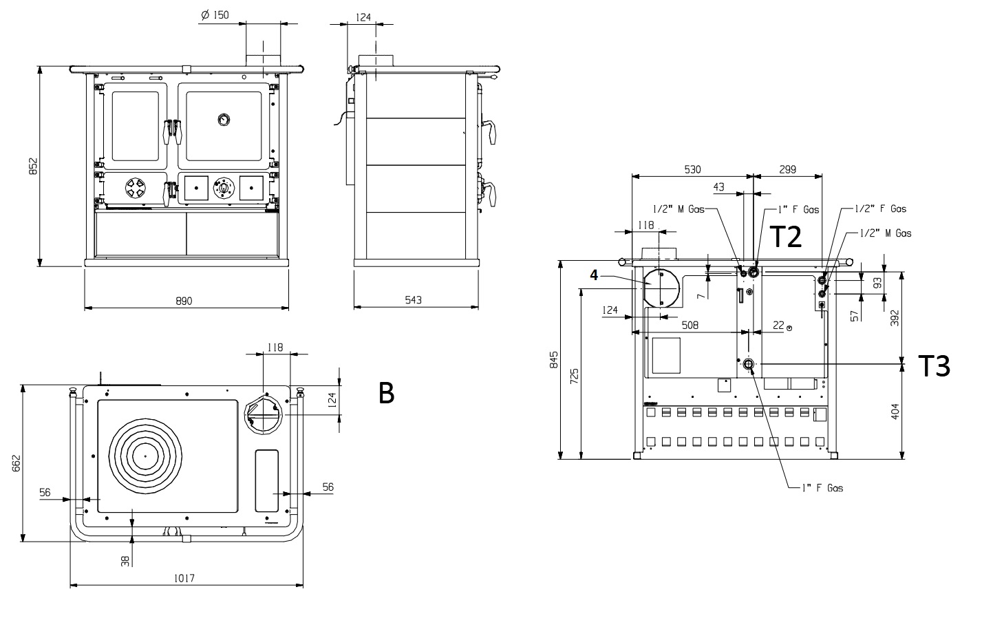
Wymiary ( szer. x wys. x głęb. ) : 1017x852x662 mm
Waga : 226 kg
Wymiary wizji ognia ( szer. x wys. ) : 220 x 225 mm
Wymiary komory spalania ( szer. x wys. x głeb. ) : 265 x 285 x 400 mm
Wymiary piekarnika ( szer. x wys. x głęb. ) : 330 x 300 x 410 mm
Średnica wyjścia spalin : 150 mm ( tylko z prawej strony , z tyłu lub z góry )
Palenisko : stalowe + płyty żeliwne
Ogrzewana kubatura : 315 m3
Moc oddawana do wody: 7 kW
Moc oddawana do pomieszczenia: 4 kW
Moc nominalna: 11,1 kW
Pojemność płaszcza wodnego: 12 L
Dolot powietrza pod palenisko : Tak
Ciśnienie robocze: 3 bar
Optymalna temperatura pracy: 70°-75° C
Ø Średnica króćców wodnych: 1″ F Gas
Powietrze pierwotne : tak
Powietrze wtórne : tak
Powietrze tercjalne: tak
Wydajność : 86 %
Średnie zużycie paliwa : 3,1 kg/h
D.S.A. – wężownica schładzająca , kuchnia może pracować w tzw. układzie zamkniętym
Technologia:
Dopalanie
System spalania opracowany przez La Nordica-Extraflame umożliwia, dzięki systemowi powietrza wtórnego/tercjalnego, dopalanie zdolne do drastycznej redukcji emisji.
Automatyczne urządzenie zabezpieczające
Jest to urządzenie chroniące przed nagłym obniżeniem temperatury wody zgodnie z obowiązującymi przepisami. Opcjonalny zawór DSA
System czyszczenia szkła
Jest to system, który dzięki specjalnej, podgrzanej ścieżce powietrza skutecznie zapobiega tworzeniu się osadów na szybie drzwiczek przeciwpożarowych.
Żeliwne drzwiczki
Drzwiczki produktów wykonane z wysokiej jakości żeliwa są niezmienne w czasie i gwarantują stałą szczelność.
Kuchnia kaflowa z płaszczem wodnym La Nordica TermoRosa DSA.16 NATURAL STONE
18 300,00 zł14 900,00 złNajniższa cena z 30 dni przed obniżką: 18300 zł
Piec kuchenny z płasczem wodnym
Produkt dostępny na zamówienie
Opis
LaNordica – Extraflame TermoRosa DSA.16
Kuchnia wolnostojąca na drewno z płaszczem wodnym i piekarnikiem.
• Okładzina zewnętrzna z kamienia naturalnego
• Panoramiczny emaliowany piec o pojemności 41 l
• Rama z żeliwa ceramicznego
• Talerz i okręgi z polerowanego żeliwa
• Szuflada na drewno
• Regulowane powietrze pierwotne i wtórne, powietrze trzeciorzędne wstępnie skalibrowany z systemem dopalania
• Urządzenie zabezpieczające DSA (opcjonalny zawór DSA).
Wymiary ( szer. x wys. x głęb. ) : 1017x852x662 mm
Waga : 226 kg
Wymiary wizji ognia ( szer. x wys. ) : 220 x 225 mm
Wymiary komory spalania ( szer. x wys. x głeb. ) : 265 x 285 x 400 mm
Wymiary piekarnika ( szer. x wys. x głęb. ) : 330 x 300 x 410 mm
Średnica wyjścia spalin : 150 mm ( tylko z prawej strony , z tyłu lub z góry )
Palenisko : stalowe + płyty żeliwne
Ogrzewana kubatura : 315 m3
Moc oddawana do wody: 7 kW
Moc oddawana do pomieszczenia: 4 kW
Moc nominalna: 11,1 kW
Pojemność płaszcza wodnego: 12 L
Dolot powietrza pod palenisko : Tak
Ciśnienie robocze: 3 bar
Optymalna temperatura pracy: 70°-75° C
Ø Średnica króćców wodnych: 1″ F Gas
Powietrze pierwotne : tak
Powietrze wtórne : tak
Powietrze tercjalne: tak
Wydajność : 86 %
Średnie zużycie paliwa : 3,1 kg/h
D.S.A. – wężownica schładzająca , kuchnia może pracować w tzw. układzie zamkniętym
Technologia:
Dopalanie
Automatyczne urządzenie zabezpieczające
System czyszczenia szkła
Żeliwne drzwiczki
Informacje dodatkowe
Drewno
Nordica Extraflame
Woda
Szyba prosta
Może spodoba się również…
Kolano spalinowe nastawne UNI fi 150
178,00 zł Dodaj do koszykaRura spalinowa fi 150 50cm
92,00 zł Dodaj do koszykaZestaw podłączeniowy do komina ceramicznego WKCP 150/180
190,00 zł Dodaj do koszykaRura spalinowa fi 150 1m
133,00 zł Dodaj do koszykaRozeta 150
22,00 zł Dodaj do koszykaWkładka dwuścienna do komina murowanego fi 150
63,00 zł Dodaj do koszykaKolano spalinowe nastawne 90° fi 150
136,00 zł Dodaj do koszykaRura spalinowa fi 150 25cm
69,00 zł Dodaj do koszykaZestaw podłączeniowy do komina ceramicznego WKCP 150/200
199,00 zł Dodaj do koszykaPodobne produkty
Kuchnia kaflowa La Nordica Rosetta 5.0 maiolica tortora lub bord
12 269,00 zł9 990,00 zł Dodaj do koszykaPiec kuchenny na drewno La Nordica Rosa SX Reverse Liberty kolor bordo
13 200,00 zł10 420,00 zł Dodaj do koszykaPiec kuchenny na drewno La Nordica Sovrana Easy EVO 2.0
8 499,00 zł6 820,00 zł Dodaj do koszyka