Jøtul FS 173 je štýlový krb s výhľadom na trojsklenovú krbu Jøtul I 520 FRL.
Klapka v hornej časti vám umožňuje zvoliť medzi prenosom tepla priamo do miestnosti alebo akumuláciou v mydlovom kameni. Venované pasívnym domom.
Technické údaje
Tepelný výkon: 100 m2
Približná hmotnosť: 345 kg
Veľkosť guľatiny: 50 cm
Účinnosť: 77%
Jøtul FS 173
28 597,00 zł
Dostupné u nášho dodávateľa
Popis
Jøtul FS 173
Jøtul FS 173 s Jøtul I 520 FLR BP, kompletné
Jøtul FS 173 je štýlový krb s výhľadom na trojsklenovú krbu Jøtul I 520 FRL.
Klapka v hornej časti vám umožňuje zvoliť medzi prenosom tepla priamo do miestnosti alebo akumuláciou v mydlovom kameni. Venované pasívnym domom.
Technické údaje
Tepelný výkon: 100 m2
Približná hmotnosť: 345 kg
Veľkosť guľatiny: 50 cm
Účinnosť: 77%
Minimálny výkon: 3,9 kW
Menovitý výkon: 7 kW
Maximálny výkon: 10 kW
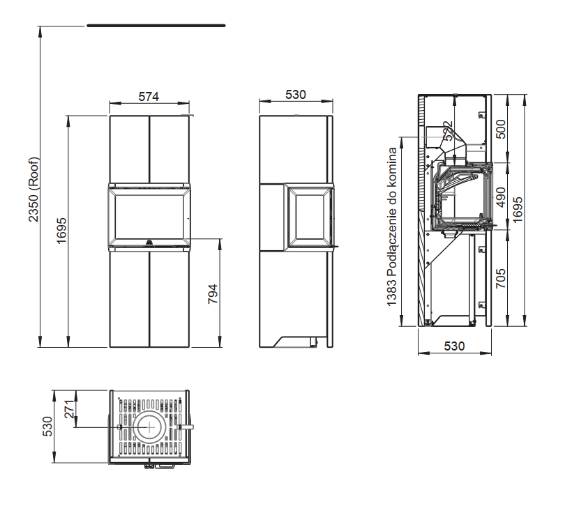
Rozmery (VxŠxH):
1690 x 574 x 530 mm
Ďalšie informácie
Jotul
ovzdušia
Drevo
Súvisiace produkty
Jøtul FS 175
28 700,00 zł Pridať do košíkaMastenca krb 6 / 26.45.2.0
Viac infoMastenec krb 6 / 26.57.2.0
Viac info